我國營造業重大職災發生人數常年位居全產業重大職災數之首,109年度營造業職災死亡人數佔全產業約46%,且依勞保局統計營造業職災死亡千人率為0.11,遠高於全產業職災死亡千人率的0.023。另一方面,由於近年來營造工程的作業複雜性提高,使施工風險大幅提高,施工架與模板支撐作業風險增加,加上國內中小型營造業者專業技術能力普遍不足,以致於近年發生施工架與模板支撐災害偏高。
為有效強化營造業稽核制度,提升營造業技術管理能力,勞動部勞動及職業安全衛生研究所(以下簡稱勞安所)整合歷年營造安全相關研究成果,包括第三方稽核制度的建立、營造業輔導技術開發、施工架檢驗制度、施工架安全工法、舊品管理機制、BIM自主管理模式、源頭管理與按圖施工查核機制、構件輕量化及系統式施工架開發等。除與社團法人中華民國工業安全衛生協會及臺灣施工架發展協會協助規劃外,此外,為強化研究成果的推廣,本次北、中、南三場次「營造業第三方稽核制度暨垂直輔導研討會與示範觀摩」並邀請桃園市政府勞動檢查處、臺中市勞動檢查處與臺南市政府勞工局共同辦理。
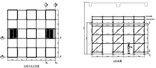
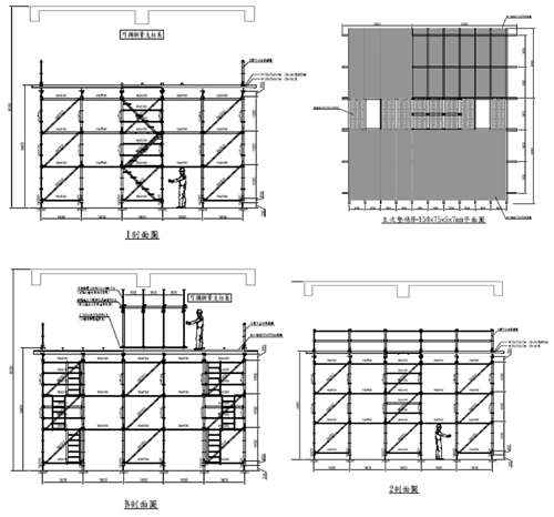
勞安所表示為協助營造業相關單位(例如:工程主辦機關、營造業者及研討會參與者)能掌握施工安全檢查與自主管理重點,各場次將另於外場進行各型施工架與模板支撐作業安全之實體展示與組搭示範觀摩。展示的內容包括:系統式施工架建物凹凸變化配置(如圖1)、鋁合金系統式施工架圓型桶槽配置與施作、系統式施工架墩柱按圖施作與配置、臨時構造物性能符合度確認、舊品施工架與 CNS4750 國家標準材料展示、內側交叉拉桿替代措施展示、安衛設施規劃與性能試驗及複合式模板支撐展示(如圖2)等。
勞安所期許藉由3場次研討會與示範觀摩的辦理,提升營造業相關單位施工安全自主管理能力,透過後續營造業第三方稽核及安全衛生輔導制度的推動,有效落實施工安全源頭管理,並達到預防職業災害的目的。關於研討會相關資訊,請參考本所網站活動消息,網址:https://www.ilosh.gov.tw/menu/1169/1170/,或社團法人中華民國工業安生衛生協會,網址:http://bcetsys-c.isha.org.tw/。

圖1 系統式施工架建物凹凸變化配置展示圖例


圖2複合式模板支撐展示圖例
- 發布單位:ilosh_職業安全研究組
- 更新日期:110-10-19
- 點閱次數: